
Нагреватель НУС-0,1 (ЖМ) предназначен для нагрева нефти и нефтяной эмульсии на устьях скважин при их транспортировке в системах внутри промыслового сбора.
Подогреватель может быть изготовлен для работы на газовом или жидком топливе, а также на комбинированном топливе (нефть, мазут, дизтопливо, газ), в данном случае в обозначении используется индекс «Ж».
При использовании в качестве топлива нефти, необходимо применять Блок подготовки жидкого топлива.
Конструкция
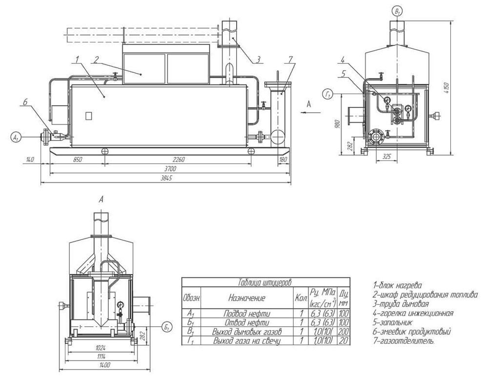
Нагреватель НУС-0,1 (ЖМ) состоит из блока нагрева, на котором при сборке изделия размещаются шкаф редуцирования топлива, газоотделитель и дымовая труба. При эксплуатации блок нагрева, шкаф редуцирования топлива и газоотделитель обвязываются по продукту и топливному газу трубопроводами нефти и газа.
Автоматика
Система автоматизации предназначена для контроля и регулирования технологических параметров процесса нагрева нефти, рабочей и аварийной сигнализации, автоматический защиты нагревателя при отклонении от нормы контролируемых параметров.
В состав системы входят следующие изделия:
- блок защиты и сигнализации (БЗС-4);
- сигнализатор наличия пламени (ДП-2.1.7Р);
- серийно выпускаемые исполнительные механизмы и приборы КИП.
Система автоматизации обеспечивает местный визуальный контроль следующих основных параметров технологического процесса:
- давление нефти на входе и выходе из подогревателя;
- давление топливного газа на входе в шкаф подготовки топлива;
- давление топливного газа перед горелочным устройством;
- температуры нефти на входе и выходе из нагревателя.
Система автоматизации обеспечивает автоматическое регулирование давления топливного газа, подаваемого к газовой горелке, и температуры нагрева продукта.
Системой автоматизации обеспечивается прекращение работы нагревателя при отклонении от заданных значений основных технологических параметров:
- давления нагреваемой нефти на входе в нагреватель;
- давления топливного газа перед горелкой;
- температуры нагрева нефти;
- погасании пламени основной горелки;
- при отключении электроэнергии;
- при неисправности сигнализатора наличия пламени.
Блок защиты и сигнализации устанавливается непосредственно у нагревателя.
По отдельному заказу может быть установлена микропроцессорная система автоматизации СА-ПНГ.М (на базе импортного контроллера), обеспечивающая связь с машиной верхнего уровня по интерфейсу RS-232/485 с использованием стандартных промышленных протоколов, что позволяет легко интегрировать подогреватель в АСУ ТП участка, а также организовать удалённый мониторинг и управление его параметрами, в данном случае в обозначении изделия используется индекс "М".
Технические характеристики
|
Параметр |
Значение |
|
Производительность по жидкости, т/сутки |
50-100 |
|
Номинальная теплопроизводительность топочного устройства при использовании газа теплотворностью 1200 ккал/м3, Гкал/час |
0,2 |
|
Рабочее давление, МПа (кгс/см2) |
1,6 (16) |
|
Давление газа перед горелкой, МПа (кгс/см2): |
0,07 (0,7) |
|
Температура жидкости, °С: |
20 |
|
Допустимая температура стенки сосуда, °С |
от минус 20 до плюс 70 |
|
Предел регулирования температуры, °С |
65±3 |
|
Расход газа в нормальных условиях, м3/ час |
не более 25 |
|
Габариты установочные, мм |
6500 |
|
Емкость сосуда, м3 |
2,5 |
|
Топливо |
природный или нефтяной попутный газ, жидкое топливо (нефть, мазут, дизтопливо) |
|
Характеристики топливного газа: |
35...60 (8356...14340) |
|
Характеристики топливной нефти: |
40-42 |
|
Нагреваемая среда – нефть, нефтяная эмульсия, пластовая вода, газ с содержанием, % моль, не более: |
0,01 |
|
Коэффициент полезного действия, %, не менее |
70 |
|
Масса, кг |
3800 |
|
Показатели надежности: |
3,5 |
Схема установки:
